CASA EN CERDANYOLA
Cerdanyola del Vallès - REF. 6076
41 m2 30 m2 2 1
venta: 280.000 €
Descripción

Presentamos esta exclusiva y coqueta casa completamente reformada, una pieza muy especial y difícil de encontrar en el mercado: una vivienda independiente, situada en una zona tranquila y familiar de Cerdanyola del Vallès, muy bien comunicada y a tan solo 20 minutos de Barcelona.

La vivienda cuenta con 41 m² construidos y 30m2 de terraza y ha sido reformada íntegramente, ofreciendo un espacio moderno, práctico y muy acogedor.

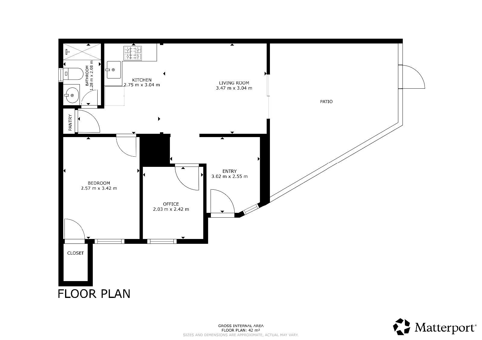
Al acceder a la casa encontramos un agradable recibidor que da paso a un luminoso salón comedor con cocina abierta, equipada con vitrocerámica y perfectamente integrada en el espacio. Desde el salón se accede directamente a una amplia terraza privada, un espacio muy agradable para disfrutar del exterior, crear una zona chill-out o un pequeño rincón verde, con gran privacidad ya que no tiene vistas directas de vecinos.

La vivienda dispone de una habitación de matrimonio con zona de armario y una segunda habitación más pequeña destinada a estudio o despacho, ideal como espacio de trabajo o lectura.

Cuenta también con un baño con ducha completamente reformado, además de zona de lavadero independiente, trastero y armario de despensa, lo que permite un excelente aprovechamiento del espacio.

Al tratarse de una vivienda sin escalones, resulta especialmente cómoda y accesible.

Se trata de una oportunidad muy especial, ya que es poco habitual encontrar casitas independientes, reformadas, con amplia terraza y privacidad, en una ubicación tan cercana a Barcelona.

Ideal para parejas, como primera vivienda o para personas que buscan un hogar cómodo, acogedor y fácil de mantener, con el encanto de una casita propia.

En definitiva, una pequeña joya lista para entrar a vivir en una ubicación privilegiada.

*El precio reflejado puede ser modificado o dado de baja sin previo aviso. Todos los datos expuestos son meramente orientativos. El precio no incluye impuestos (ITP, IVA, AJD.) ni gastos que deberá abonar el comprador/a (Honorarios de la agencia, notaría, registro, financiación...)

*Los servicios de intermediación inmobiliaria incluyen la búsqueda, negociación, asesoría financiera-hipotecaria, técnica y legal, así como el acompañamiento completo hasta notaría y posventa.


Características
Precio Venta 280.000 €
Precio/m² 6.829
Año de construcción 1940
Construidos 41 m2
Dormitorios 2
Baños 1
Cocina Amueblada
Calefacción radiadores eléctricos
Trastero
Terraza
Estado MUY BIEN (nuevo o reformado)
Tipo de suelo parquet
Aire acondicionado
Calificación Energética (G) VER
Luz
Agua
Visita Virtual
Vídeos
Escalas de eficiencia


Eficiencia Emisiones: 64,00
Eficiencia Consumo: 381,00
381
64

Contáctanos

Si deseas más información sobre esta propiedad, por favor, rellena el formulario.

 Sí, he leído y/o acepto las Condiciones de uso y la Política de privacidad