Ficha
PARCELA CON LICENCIA DE OBRAS + PROYECTO EN VILADECAVALLS
Viladecavalls - REF. 5984
217 m2 4 2 2
venta: 555.000 €
antes: 560.000 €
Descripción

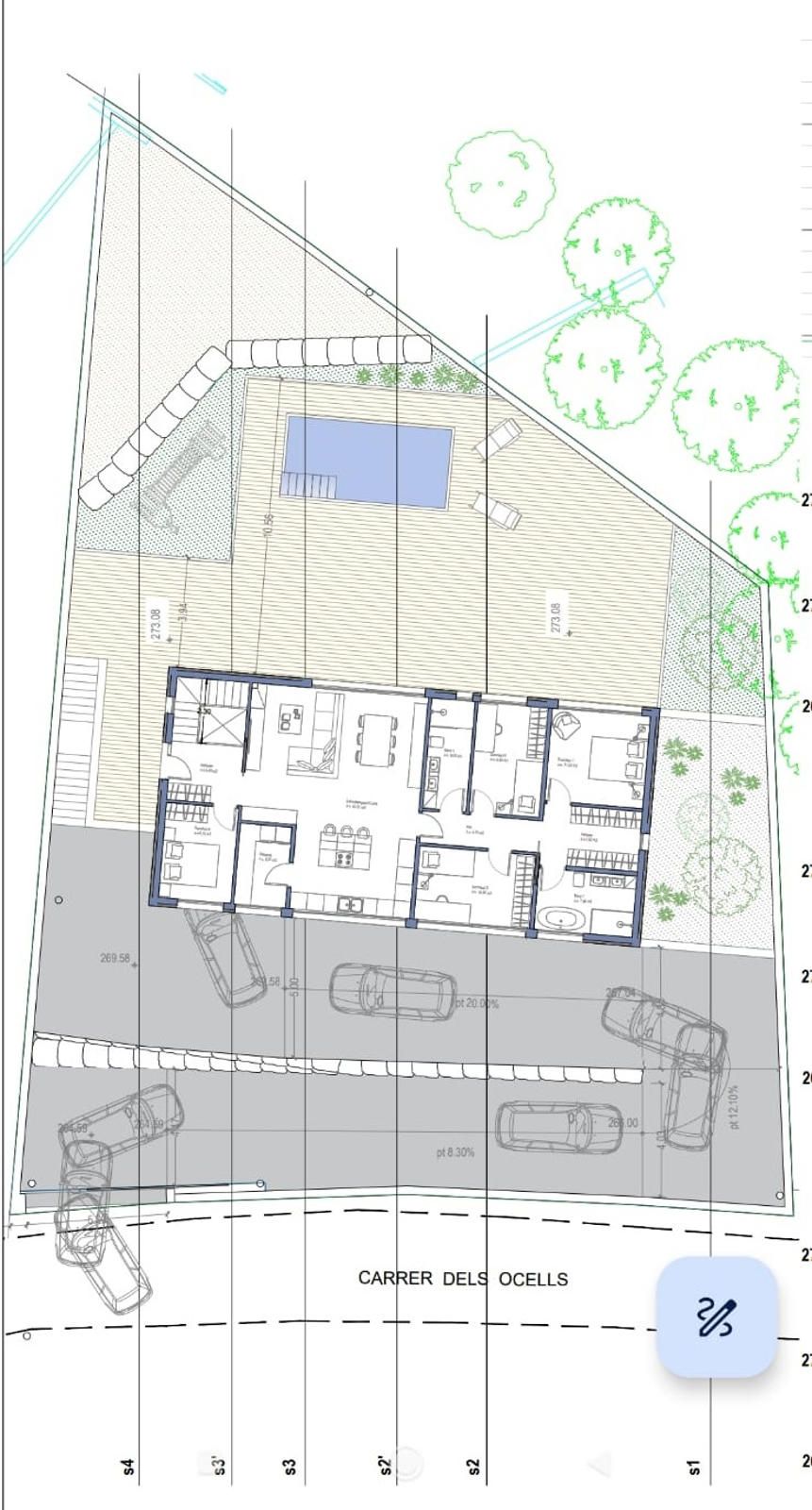
Proyecto con licencia para vivienda unifamiliar de diseño en venta.

Se ofrece solar con proyecto y licencia de obra aprobada para la construcción de una vivienda unifamiliar cúbica y minimalista de diseño, de aproximadamente X m² construidos.

El proyecto propone una casa moderna y luminosa, con grandes ventanales que integran el interior con el exterior y llenan los espacios de luz natural.

La vivienda se distribuye en una planta y cuenta con cuatro habitaciones, incluyendo una suite principal con vestidor, y un amplio salón-comedor con cocina americana abierta que conecta directamente con la zona exterior.

Dispone además de garaje para dos coches, zona de piscina bien orientada, vistas despejadas y una excelente orientación solar durante todo el día.

Los materiales y acabados son personalizables, ofreciendo la posibilidad de adaptar el diseño a las preferencias del comprador.

Se trata de un proyecto orientativo de precio, con la ventaja de que cada propietario puede construir su vivienda con el proyecto y la licencia ya concedidos.

Una oportunidad ideal para quienes buscan una casa contemporánea, luminosa y exclusiva, lista para empezar a construir, en un entorno tranquilo y bien comunicado.

*El precio reflejado puede ser modificado o dado de baja sin previo aviso. Todos los datos expuestos son meramente orientativos. El precio no incluye impuestos (ITP, IVA, AJD.) ni gastos que deberá abonar el comprador/a (Honorarios de la agencia, notaría, registro, financiación...)

*Los servicios de intermediación inmobiliaria incluyen la búsqueda, negociación, asesoría financiera-hipotecaria, técnica y legal, así como el acompañamiento completo hasta notaría y posventa.


Características
Precio Venta 555.000 €
Precio/m² 2.558
Construidos 217 m2
Parcela 805 m2
Dormitorios 4
Baños 2
Cocina Amueblada
Estado OBRA NUEVA (construcción)
Tipo de suelo parquet
Aire acondicionado
Garaje
Calificación Energética En trámite
Luz
Gas
Agua
Alarma interior
Escalas de eficiencia



Contáctanos

Si deseas más información sobre esta propiedad, por favor, rellena el formulario.

 Sí, he leído y/o acepto las Condiciones de uso y la Política de privacidad